18079808826
    当前位置:首页 > 经典工程 > 应用工程案例(优质项目展示) 应用工程案例(优质项目展示)
    【电缆沟封堵】陕西国际信托大厦的创新之选——低密度灰硅基层板
    发布日期:2026-01-07    人气:295
     

    【电缆沟封堵】陕西国际信托大厦的创新之选——低密度灰硅基层板

          在建筑施工中,电缆封堵是一个至关重要的环节,它不仅关系到电气安全,更是建筑消防安全的重要组成部分,封堵随意不严密,一旦发生进水、火灾或小动物侵入破坏等情况,轻则维修更换电缆,重则酿成重大事故!


    项目背景

           陕西国际信托大厦,作为城市核心区域的一座现代化地标建筑,承载着重要的商业、办公与会议功能。其内部电力系统复杂,电缆沟作为电力线路的重要通道,其安全与稳定直接关系到大厦的整体运行效率与安全性,在电缆沟封堵材料选择过程中,项目团队面临了诸多挑战,首先,封堵材料需要具备足够的强度和耐久性,以承受电缆沟内的各种荷载和环境因素,其次,材料应具备良好的防火性能,确保在火灾发生时能够有效阻止火势蔓延;此外,考虑到环保与可持续性,材料的选择还需符合绿色建筑理念。

     解决方案与材料选择


    经过深入的市场调研与技术评估,项目团队最终选择了远洋威利24mm低密度灰硅基层板作为电缆沟封堵的主要材料,该材料以其优异的性能满足了项目团队的所有需求:

    优异的防火性能:防火等级达到A1级,即不燃材料,能够有效阻止火势蔓延,保护电缆及人员安全。

    高强度与耐久性:远洋威利24mm低密度灰硅基层板具有较高的抗压强度和抗折强度,能够承受电缆沟内外的各种荷载,确保封堵结构的长期稳定性。

    良好的耐腐蚀性与防水性:能够抵抗多种化学介质的侵蚀,同时具有良好的耐潮性能,确保电缆沟内环境干燥,延长电缆使用寿命。

    环保节能:无甲醛,使用过程中无有害物质释放,符合绿色建筑理念。

    项目详情


    项目名称:陕西国际信托大厦

    应用产品:低密度灰硅基层板

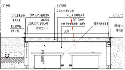
    使用厚度:24mm

    应用部位:电缆沟防火封堵

    产品应用亮点:防火A1级、无甲醛、耐潮、易施工。



    陕西国际信托大厦电缆沟封堵项目中,远洋威利24mm低密度灰硅基层板的应用不仅解决了项目团队面临的多项挑战,还带来了诸多优势:

    提升消防安全:出色的防火性能为大厦的消防安全提供了有力保障,降低了火灾风险和财产损失。

    提升封堵效果:有效防止了鼠害、水害等安全隐患,确保了电力系统的安全稳定运行。

    降低维护成本:由于低密度灰硅基层板优异的耐腐蚀性和耐潮性能,大大延长了电缆沟封堵结构的使用寿命,降低了维护成本。

    美化环境:低密度灰硅基层板表面易装饰,后期可与大厦的整体装修风格相协调,提升了电缆沟区域的美观度。

    这一成功案例不仅验证了低密度灰硅基层板在电缆沟封堵领域的优异性能,也为同类建筑项目的应用提供了宝贵的经验借鉴,随着建筑领域对材料性能要求的不断提高,远洋威利将继续致力于新型建筑材料的研发与创新,为更多建筑项目提供安全、环保、高效的解决方案。同时,我们也期待远洋威利低密度灰硅基层板在更多领域得到广泛应用,为推动建筑行业的绿色发展贡献力量。

    经典工程
    联系我们
    江西远洋威利实业有限公司
    联系人:黄经理
    电话:0798-6688556
    传真:0798-6688906
    手机:18079808826
    Q Q:2500262266
    邮箱:july@jxyywl.com
    地址:江西省乐平市人民东路11号(童家山工业园内)
    远洋威利环保节能防火板材

    关于远洋

    公司简介 荣誉资质 经营理念 企业展示 国外营销 企业新闻 远洋威利生产基地 新品发布栏 设计潜能

    产品中心

    基础板系列 天花板吊顶系列 玻镁板系列 混凝土风格清水板系列 彩色通体壁岩板系列 特种用途板材系列 轻质隔墙板系列 玻镁复合风管系列 被动式防火板系列 硅藻土系列

    装配式房屋

    轻钢房屋 岗亭 变电站

    专业隔墙系统

    防火系统 隔声系统 快装系统

    加盟我们

    联系我们 远洋威利官方公众号 远洋威利官方公众号
      国家高新技术企业国家高新技术企业